全校师生:
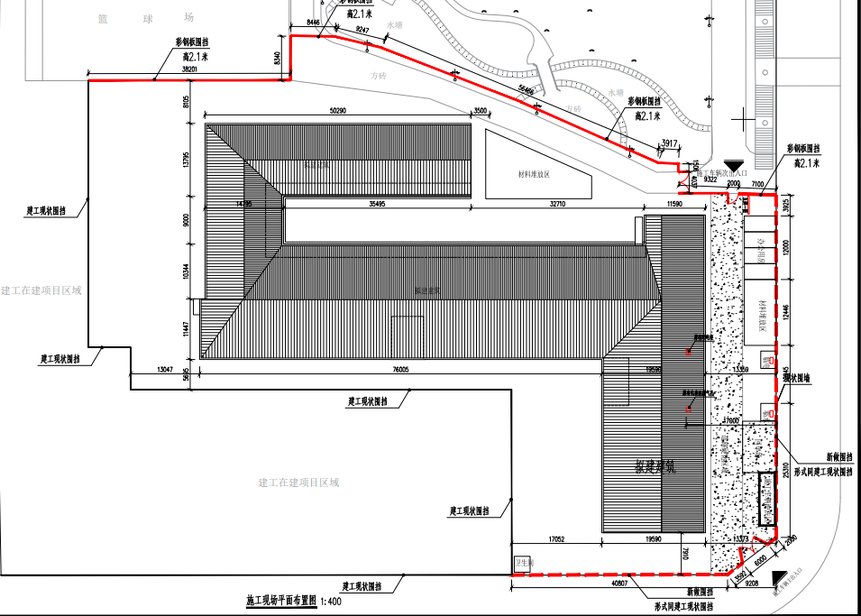
改善办学保障条件—良乡校区健康驿站工程于2023年7月21日—10月31日实施。施工主要范围为良乡校区教学区商学院东南侧预留发展用地内(详细区域见示意图)。施工内容为健康驿站及附属配套工程新建。
施工期间将严格执行国家和学校安全文明施工管理措施。因施工需要,届时上述区域周围将设立围挡,进行封闭管理。请各部门于施工前将楼内相关物品进行腾挪,施工现场封闭后,场内所有物品将作为建筑垃圾处理。施工期间,将有大型货车、吊车及施工车辆进出。请全校师生远离施工区域,注意安全,请勿进入围挡及警戒线以内,请勿在围挡附近停放车辆。
由此给您带来的不便,敬请谅解!
现场负责人:牛伟星 蒲老师
联系方式: 13911704920 13911704920
校园建设处 保卫处
2023年7月19日

