全校师生:
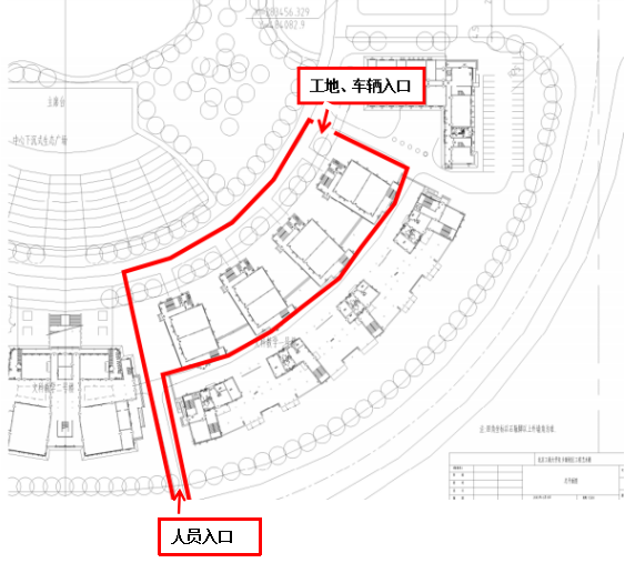
改善办学保障条件-良乡校区文二楼配楼改造项目于2022年4月1日至2022年8月20日实施。施工主要区域详细见示意图,施工内容为楼内建筑结构、装饰、水、电、消防、暖通等专业设施改造。
施工期间将严格执行国家和学校安全文明施工管理措施。因施工需要,届时上述区域周围将设立围挡,进行封闭管理。请各部门于施工前将楼内相关物品进行腾挪,施工现场封闭后,场内所有物品将作为建筑垃圾处理。施工期间,将有大型货车、吊车及施工车辆进出。请全校师生远离施工区域,注意安全,请勿进入围挡及警戒线以内,请勿在围挡附近停放车辆。
由此给您带来的不便,敬请谅解!
项目负责人:吴老师
联系方式:81353259、13011814652
校园建设处 保卫处
2022年3月29日

